4485 Queen Street East Street #Second Floor Units, Brampton, ON L6T 0A2
Queen Street Corridor · Peel · ON
MLS® Number: W13022612
Listing Brokerage: ROYAL LEPAGE PRG REAL ESTATE
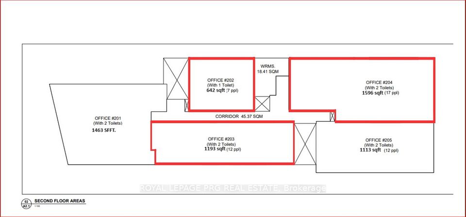
Second-floor office units available for lease, with occupancy starting end of September. Unit sizes range from approximately 640 sq. ft. to 1,600 sq. ft., ideal for professional and corporate uses such as law firms, accounting offices, mortgage brokerages, and physiotherapy clinics. Strategically located in the heart of Brampton at the busy intersection of Queen Street and Gore Road, this property offers excellent visibility and accessibility in a high-traffic area.
Directions: East West Queen Street
Cross Street: Queen Street E/ The Gore Road

No obligation or purchase necessary, cancel at any time.

905-226-7284
Not a good time?