1717 Brock Street S, Whitby, ON L1N 4M7
Port Whitby · Durham · ON
MLS® Number: E12550232
Listing Brokerage: RE/MAX REALTRON REALTY INC.
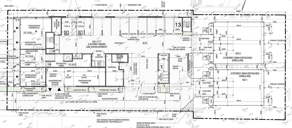
THIS SITE IS BEING OFFERED under POWER OF SALE. Exceptional residential development being a total of 55,166 square feet Buildable. The property is Zoning Approved for Residential Mixed-Use redevelopment on Brock St. S and is at 2nd stage submission for the Site Plan Application, less than 6 months to approval allowing purchasers to make changes as needed to the final proposal. This versatile site presents strong development flexibility. While well-suited for condominium, it also represents an excellent opportunity for a purpose-built rental building. With current market conditions in the Durham Region and GTA showing sustained high demand for quality rental housing-driven by population growth, proximity to transit, employment hubs, and waterfront amenities-developing for long-term rental hold could yield attractive returns amid ongoing rental market tightness.The property's location, exposure, and approvals position it for an efficient transition to construction for an active builder/developer seeking an immediate project. This exceptional property boasts a Total Buildable Space of 55,166 sq. ft., offering immense development potential across two primary areas. The proposed development features: 29 Condominium Units and 4 Semi-Detached Units with 52 parking spaces. The Port of Whitby area has emerged as a target for residential intensification due to its exceptional location in perspective to the waterfront and downtown Whitby, as well as public transit, major highways and amenities. There are a number of high-rise mixed-use developments that have been proposed, approved and sold within the immediate area.
Directions: Victoria Rd E & Brock St S
Cross Street: Victoria Rd E & Brock St S

No obligation or purchase necessary, cancel at any time.

416-816-6001
Not a good time?