8000 Jane Street 301, Vaughan, ON L4K 5B8
Vaughan Corporate Centre · York · ON
MLS® Number: N13006978
Listing Brokerage: REN/TEX REALTY INC.
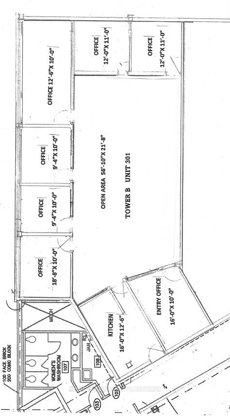
Professional Office Building In The Heart Of Vaughan With Easy Access To Vaughan Subway Station, Jane St, Hwy 7, Hwy 400, Hwy 407. 3,000 Sq.Ft On 3rd Floor Of Tower "B" At 8000 Jane Street With Great Layout: Private Offices, Kitchenette, Wrap Around Private Offices With Windows. See Floor Plan. Plenty Of Surface & Underground Parking Available.
Directions: Jane north of Hwy 7
Cross Street: Jane/Portage Way

No obligation or purchase necessary, cancel at any time.

905-226-7284
Not a good time?