8000 Jane Street 101, Vaughan, ON L4K 5B8
Vaughan Corporate Centre · York · ON
MLS® Number: N13006870
Listing Brokerage: REN/TEX REALTY INC.
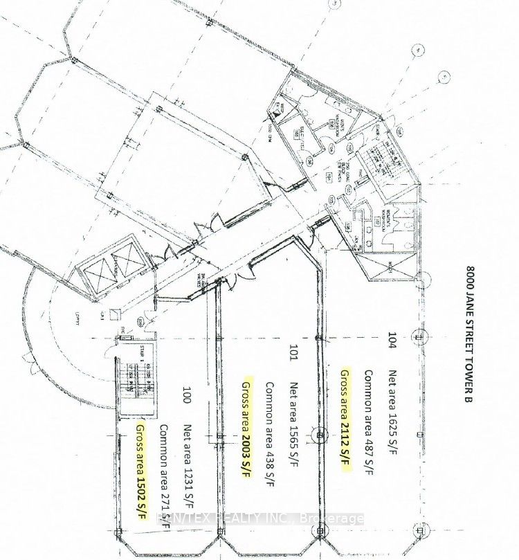
Professional Office Building In The Heart Of Vaughan With Easy Access To Vaughan Subway Station, Jane St, Hwy 7, Hwy 400, Hwy 407. 2,003 Sq.Ft. On MAIN FLOOR Of Tower "B" At 8000 Jane Street With Bright Open Concept Layout. See Floor Plan. Plenty Of Surface & Underground Parking Available.
Directions: Jane north of Hwy 7
Cross Street: Jane/Portage Way

No obligation or purchase necessary, cancel at any time.

905-226-7284
Not a good time?