Loading...
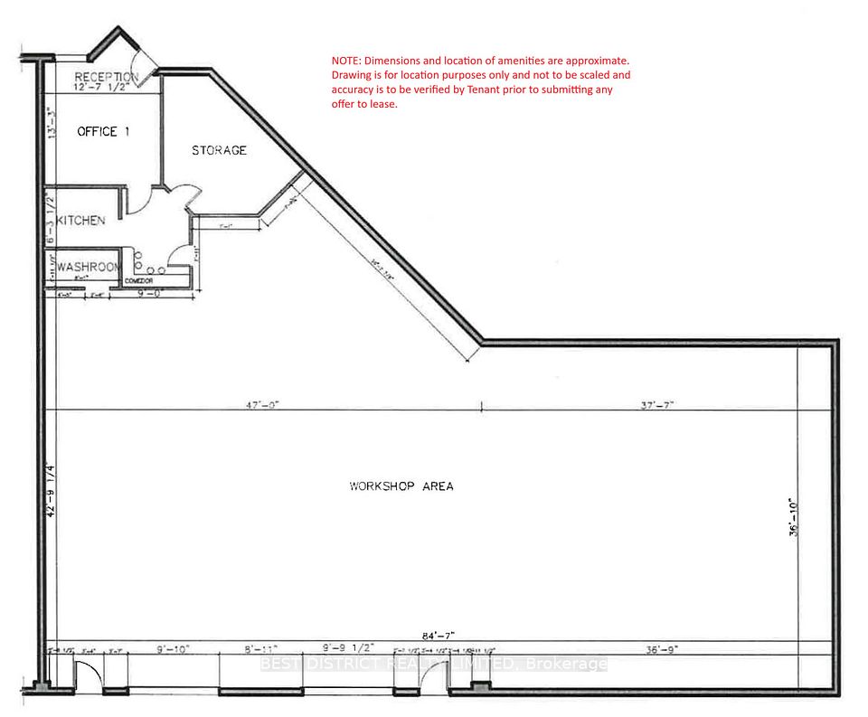
50 Ritin Lane 6, Vaughan, ON L4K 4W6 · $18.95 | Bizmonk