600 Dixon Road 113 & 114, Toronto W09, ON M9W 1J1
Willowridge-Martingrove-Richview · Toronto · ON
MLS® Number: W12309065
Listing Brokerage: RE/MAX ESCARPMENT REALTY INC.
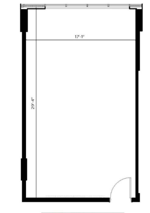
CUSTOMIZE YOUR DREAM OFFICE at the Mezzanine Floor. Expected Closing: end of August 2025. Shell Condition - Customize it to fit your business needs & branding. Prime Location - 5 mins from Pearson Airport, near major highways. Top-Tier Business Hub - Ideal for professionals, startups, medical offices & investors. Luxury Amenities - On-site retail, restaurants, a multi-use atrium & Suites. One parking spot included and 2 lockers. The "REGAL PLAZA" is minutes away from Toronto Pearson Airport; Toronto Congress Centre and Major Highways : 401, 409 & 427. It is connected to a franchise hotel on the North Side of the Property. and is at the eastern entrance of what is already Canada's Second Largest Employment Zone.
Directions: -
Cross Street: Martin Grove Rd and Dixon Rd

No obligation or purchase necessary, cancel at any time.

905-226-7284
Not a good time?