1275 Finch Avenue W 201, Toronto W05, ON M3J 0L5
York University Heights · Toronto · ON
MLS® Number: W13026852
Listing Brokerage: PC275 REALTY INC.
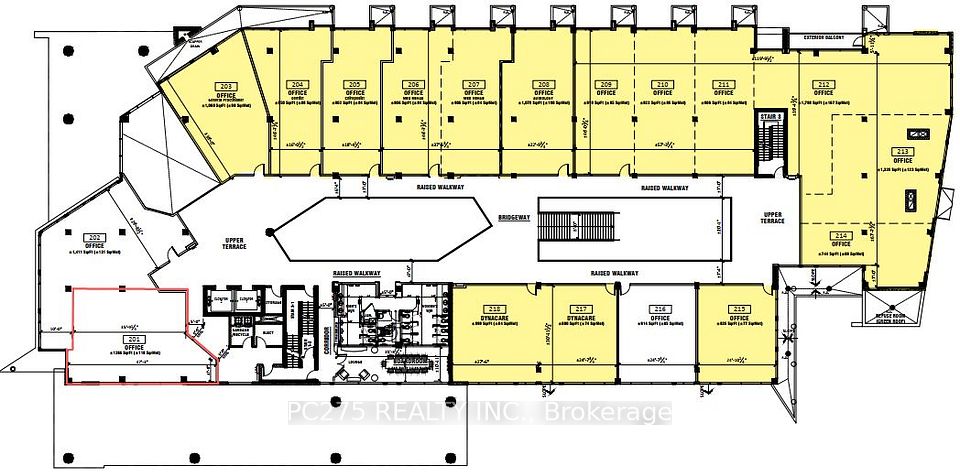
An exceptional opportunity to acquire a larger-format commercial condo unit within the active mezzanine level at 1275 Finch Ave W., strategically Located directly across from the elevator bank for maximum visibility and accessibility. Unit 201 offers a unique advantage through its high-visibility placement within a busy internal corridor, benefiting from consistent foot traffic generated by surrounding medical, wellness, and service-oriented tenants. The immediate area includes established users such as a pharmacy, diagnostic clinics, and food service providers, creating a built-in ecosystem that supports patient flow and client convenience. Delivered in shell condition, the unit provides a flexible blank canvas with utility rough-ins in place, allowing for efficient build-out tailored to medical, professional, or service-based uses. Its layout and positioning are particularly well-suited for practices that benefit from accessibility, visibility, and ease of navigation for clients. The building features full-service amenities including concierge/security, elevators, public washrooms, and controlled public access during business hours. A large underground parking facility offers additional convenience, with options for daily use, long-term rental, or purchase. Located steps from Finch West transit infrastructure, including subway and LRT connectivity, the property offers excellent accessibility for both staff and clients, with quick access to major arterial routes and Highway 401. Ideal for: Medical and diagnostic clinics. Wellness and therapy practices. Service-based businesses benefiting from walk-in exposure. A compelling opportunity to establish or expand within a built-in commercial ecosystem designed for accessibility, convenience, and long-term utility.
Directions: Main intersection; Keele & Finch. One block west on Finch at the corner of Tangiers Rd and Finch Ave.
Cross Street: Finch Ave W. & Tangiers Road

No obligation or purchase necessary, cancel at any time.

905-226-7284
Not a good time?