901 Jane Street 202, Toronto W03, ON M6N 4C6
Rockcliffe-Smythe · Toronto · ON
MLS® Number: W12969072
Listing Brokerage: KAIZEN CAPITAL REALTY PARTNERS
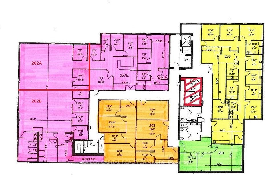
Prime 5,731 sq. ft. second-floor office space available on a high-traffic arterial road with excellent visibility and ample on-site parking. This versatile unit is ideal for office, professional services, and health and wellness uses. Located in a growing residential and commercial area with convenient access to public transit, the property offers strong exposure, easy accessibility, and excellent growth potential. Listing price is negotiable depending on the length of term. Extras: Water, hydro, gas, and additional CAM expenses. Current tenant is Get Well Physio, and some business-related equipment may also be available for sale.
Directions: Jane Street & Dalrymple Drive
Cross Street: Jane Street & Dalrymple Drive
Virtual Tour
No obligation or purchase necessary, cancel at any time.

905-226-7284
Not a good time?