525 Milner Avenue 1, Toronto E11, ON M1B 2K4
Malvern · Toronto · ON
MLS® Number: E12959240
Listing Brokerage: KOLT REALTY INC.
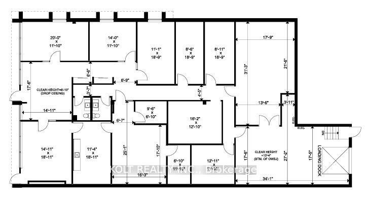
Rare corner unit in well maintained complex with with immediate access to HWY 401. Ample parking. Approximately 87% professional finished offices with 2 washrooms and kitchenette. Floor plan available. 100%a/c. TTC at door. Lots of room for shipping, 53 ft trailer access to be confirmed by Purchaser. Food or retail uses to obtain written consent of the board. Measurements and permitted uses to be confirmed by purchaser.
Directions: Markham Rd and 401
Cross Street: Markham Rd and 401

No obligation or purchase necessary, cancel at any time.

905-226-7284
Not a good time?