1564 Danforth Avenue, Toronto E03, ON M4J 1N4
Danforth · Toronto · ON
MLS® Number: E12833254
Listing Brokerage: CENTURY 21 ATRIA REALTY INC.
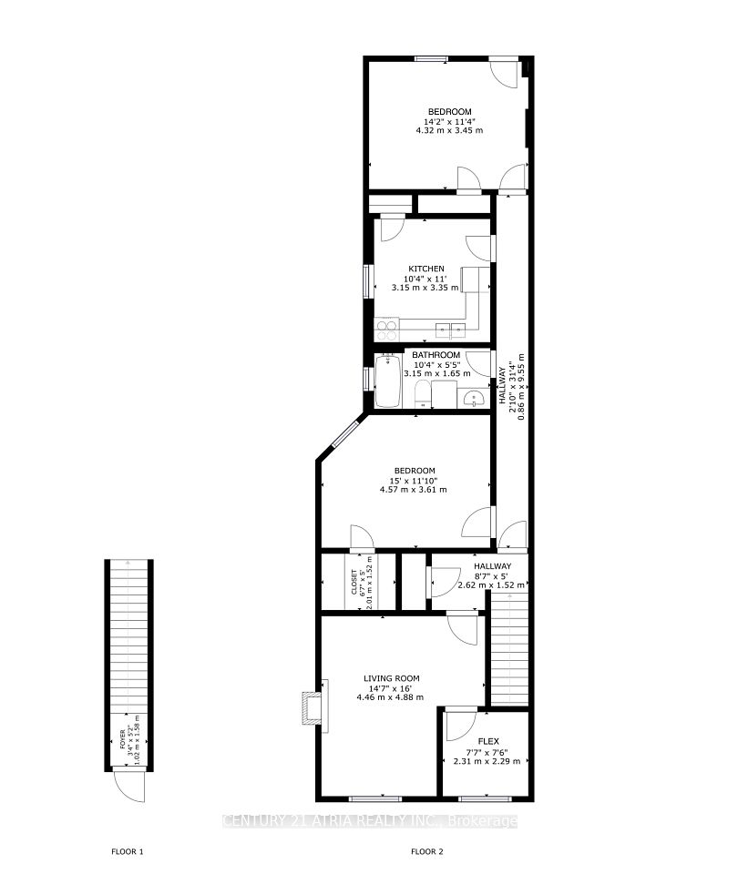
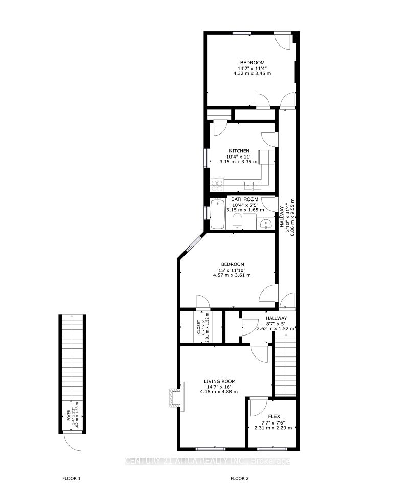
Rare work/live unit! Over 2,600 sq ft w/ leased main-flr retail providing instant income & 5%+ cap potential. Ideal for investor or end-user. Upper lvl features 2BR + flex blank-canvas suite-live in (limited only by your imagination) or rent for add'l rev. Dbl car garage, private backyard entertainment area & bsmt w/ sep entrance add versatility. Endless upside for entrepreneurs, creatives & savvy investors seeking cash flow + growth. Extras: Located among a plethora of restaurants and a vibrant neighbourhood, this property offers walkable access to public transit and one of a kind retail stores making it an investor's dream. A rare chance to secure solid long-term value.
Directions: As per Google
Cross Street: DANFORTH AVE & COXWELL RD
Virtual Tour
No obligation or purchase necessary, cancel at any time.

905-226-7284
Not a good time?