1100 Sheppard Avenue E 407BE, Toronto C15, ON M2K 2W1
Bayview Village · Toronto · ON
MLS® Number: C13008712
Listing Brokerage: OULAHEN TEAM REALTY INC.
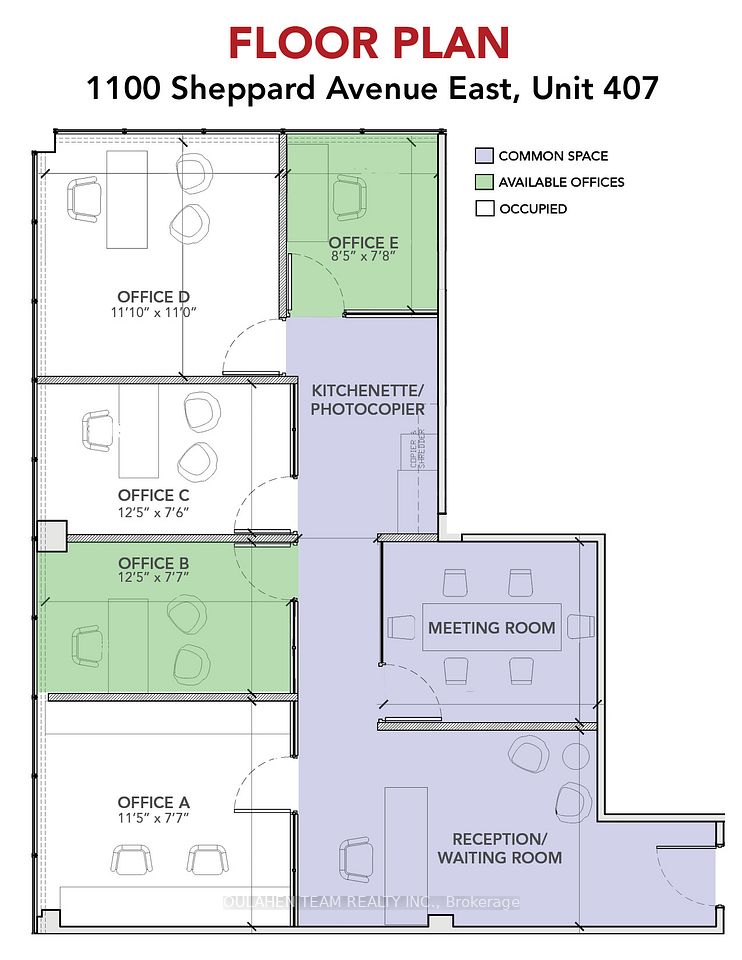
Renovated and fully furnished professional office for lease within shared office space. Excellent opportunity for real estate lawyer with space for law clerk. Collaborate with landlord's law firm who is looking to share real estate files. Work in a private office with large windows and full use/access of shared common areas including: reception/waiting area, meeting room, Xerox copy machine. This convenient location is close to Highway 401, Leslie TTC subway station, and Oriole GO station. Free visitor parking. Close to McDonalds, IKEA, Canadian Tire, TD, BMO, and so much more! (Main front door locked 8pm to 6am).
Directions: Enter through Eunice Rd
Cross Street: Sheppard & Leslie

No obligation or purchase necessary, cancel at any time.

905-226-7284
Not a good time?