298 Newton Drive, Toronto C14, ON M2M 2P8
Newtonbrook East · Toronto · ON
MLS® Number: C12953274
Listing Brokerage: RE/MAX REALTRON BIJAN BARATI REAL ESTATE
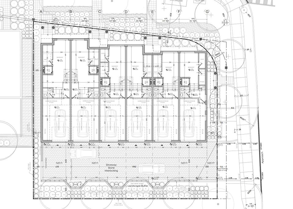
This Two-Storey Solid Brick Home with 4+1 Bedrooms and 4 Washrooms, Situated in a High Exposure Strategic Location Right on the Prime Corner Of Bayview Ave & Newton Dr, With A 101 Feet Exposure On Bayview Ave and 83' on Newton Drive, It Offers a Rare Opportunity for Investors, Developers, or Visionary Homeowners, Suitable for Living, Rental Income, or Great Opportunity for Future Development!! Under the City's Updated Zoning and Intensification Guidelines, the Lot May Support the Creation of Multiple Residential Units, Making It an Ideal Candidate for Multi-Unit Housing **, Income Properties, or a Modern Townhouse Project! ** Possible Options:1) Current Owner Has the Re-Zoning City Approval for Six (6) 3-Storey Freehold Townhouse Units, with Vehicular Access from Newton Drive and 6 Parking Spaces, (with Ready N.O.A.C from City)! 2) 3-Storey Multi Unit Purpose Built Rental As Per ** CMHC MLI Select **! 3) Under the EHON Intuitive Bylaw, Allowing for the Creation of a 4-Story Stacked Townhouse Community of Up to 19 Units!!4) For Those Considering a Larger Vision, the Property's Strategic Location and Assembly Potential with Adjacent Lots Enable the Possibility of a 6-Storey Boutique Condo Project, Accommodating Up to 60 Units. The Corner Positioning Allows for Flexible Access and Site Design Options! What Truly Sets This Property Apart Is Its Significant Redevelopment Potential. Buyer/Buyer Agent To Verify All Information and Proposals with City Planner!Whether You're Looking to Live, Invest, or Build, This Is a Unique Opportunity to Secure a High-Exposure/ Strategic Property with Strong Upside in a Growing Urban Area. Opportunities Like This Are Increasingly Rare-Explore the Possibilities and Unlock the Full Potential of This Prime Corner Lot, Convenient Access to Transit, All Amenities, and Key Urban!! The Proposed Renderings are Attached
Directions: Bayview Ave & Steeles Ave
Cross Street: Bayview Ave & Steeles Ave
Virtual Tour
No obligation or purchase necessary, cancel at any time.

905-226-7284
Not a good time?