649 Ontario Street 1, Stratford, ON N5A 3J6
Stratford · Perth · ON
MLS® Number: X12685206
Listing Brokerage: RIGHT AT HOME REALTY
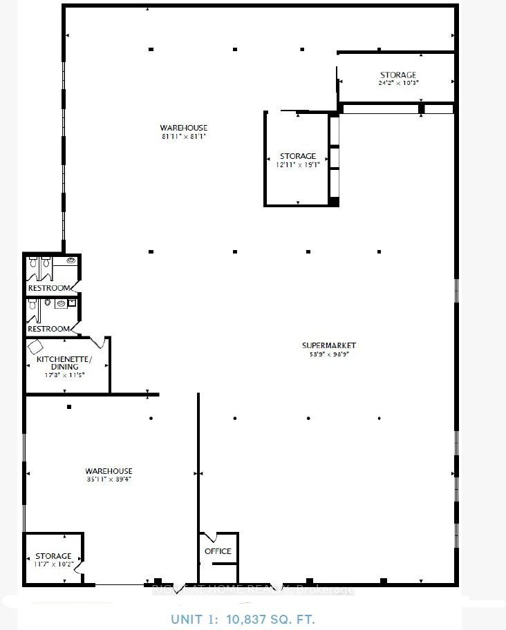
Offering 10,837 SF of flexible commercial space in a high-traffic, high visibility location on Stratfords main commercial corridor. Positioned alonge a major arterial. route, the property benefits from outstanding exposure and is surrounded by national and local retailers including Walmart, Zehrs, Tim Hortons, Dairy Queen, and more. C2 zoning permits a broad range of uses, including medical, automative sales or service, personal service, studio, place of worship, and other commercial applications. On-site surface parking convenience for both customers and staff.
Directions: North from Romeo St S, right onto Ontario St
Cross Street: North from Romeo St S, right onto Ontario St

No obligation or purchase necessary, cancel at any time.

905-226-7284
Not a good time?