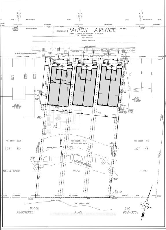
229 Harris Avenue, Richmond Hill, ON L4E 3M3
Jefferson · York · ON
MLS® Number: N13045164
Listing Brokerage: HOMELIFE GOLCONDA REALTY INC.
*ATTN BUILDERS AND INVESTORS* ZONING APPROVED, SERVICED SEMI-DETACHED DEVELOPMENT ** The property has aconditionally approved consent application for a 6-unit SEMI-DETACHED. Approval is progressing in the process of satisfying theengineering conditions (final stage). Once conditions are met, you can apply for a building permit. Buyers can move forward knowing theapplication is in an advanced stage, pending final steps. The lots are being FULLY SERVICED. Each unit has a side entrance to the basement.Units range approximately 2,700 sqft. in size, with long, deep, and back to the ravine. Extremely well located in the affluent & sought-afterJefferson community. A construction project is underway to provide an additional area on the north side of the Site. This premier locationoffers luxury living with convenient access to top-rated schools, parks, shopping, dining, and major transit routes. Mature trees and upscaleresidences surround the serene neighbourhood. There is a 2-story home with well water and septic on the property
Directions: Yonge/Harris
Cross Street: Yonge/Jefferson

No obligation or purchase necessary, cancel at any time.

905-226-7284
Not a good time?