114 Simcoe Street Lower, Peterborough, ON K9H 2H4
Town Ward 3 · Peterborough · ON
MLS® Number: X12803840
Listing Brokerage: REMAX YOUR COMMUNITY REALTY
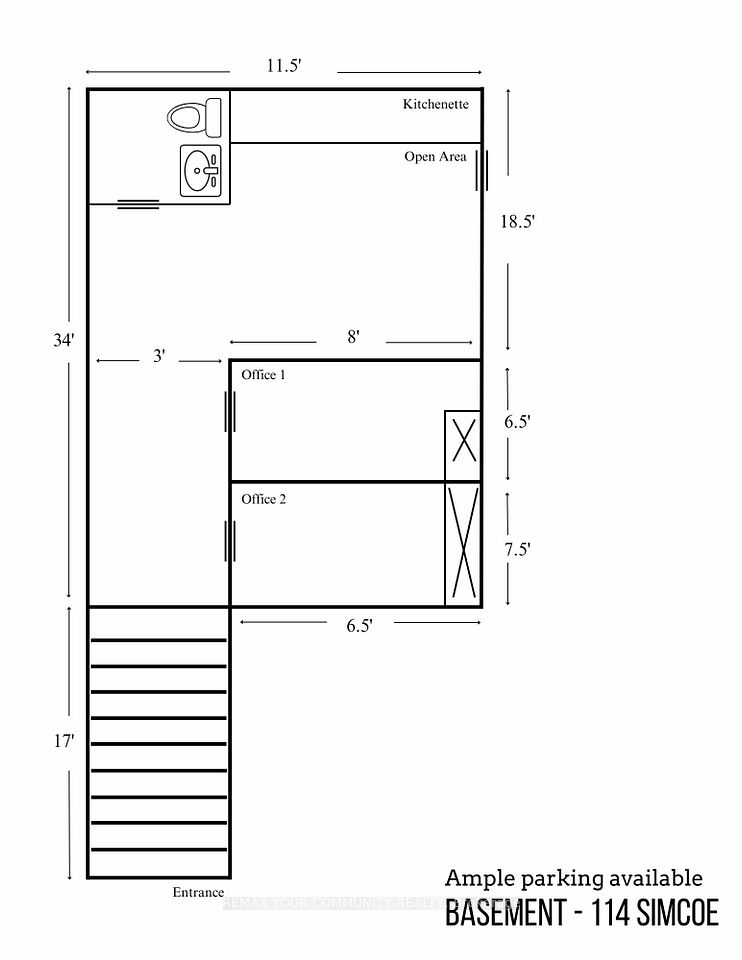
Prime retail space located in the heart of downtown Peterborough. Almost 400 Sf available. Parking available. Directly across from Peterborough Square mall, Galaxy cinema, and Millennium waterfront Park. Do not miss out on this fantastic opportunity to be located in a central location, with high vibrancy and conveniently very walkable!
Directions: Simcoe St / Water St
Cross Street: Simcoe St / Water St

No obligation or purchase necessary, cancel at any time.

905-226-7284
Not a good time?