2770 Brighton Road, Oakville, ON L6H 5T4
1021 - WP Winston Park · Halton · ON
MLS® Number: W12318981
Listing Brokerage: EXECUTIVE REAL ESTATE SERVICES LTD.
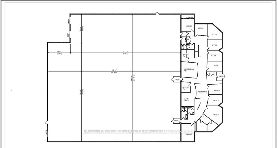
High-Quality Freestanding Building in Oakville's Sought-After Winston Business Park! This well-maintained property features a professionally finished NEW office area (5500 SQFT) and a bright warehouse with white-painted walls and roof deck. Recently upgraded with new skylights throughout the entire building, enhancing natural light. Cameras in the entire building as well. Enjoy two points of site access, a generous shipping apron with a concrete dolly pad, and easy connectivity to QEW, Hwy 403, Hwy 407, public transit, and a wide range of nearby retail amenities.
Directions: Take Hwy410 S merge onto QEW W toward Hamilton/Oakville exit at Ford Drive/Industrial Park area turn right onto Brighton Rd destination on your right.
Cross Street: Winston Park Dr & Brighton Rd

No obligation or purchase necessary, cancel at any time.

905-226-7284
Not a good time?