723 Lakeshore Road E, Mississauga, ON L5G 1J7
Lakeview · Peel · ON
MLS® Number: W12748344
Listing Brokerage: EXP REALTY
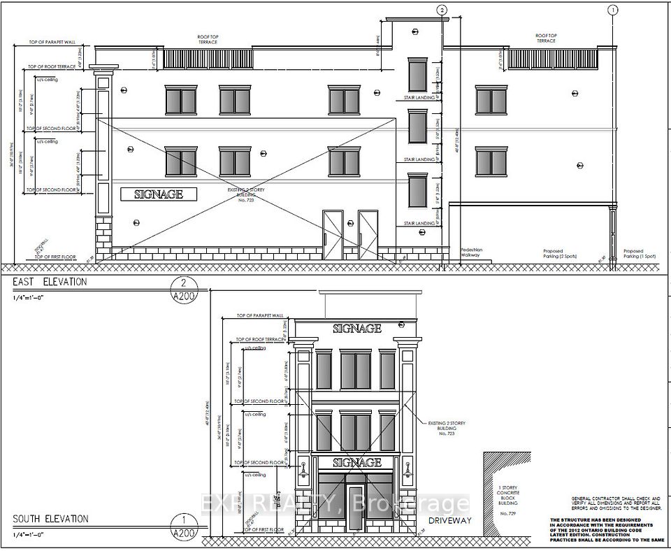
Shovel-ready mixed-use redevelopment opportunity along the Lakeshore corridor. The existing two-storey building features one retail unit and one residential apartment, offering holding income with clear upside. The property is fully approved to add a third storey and convert to six residential units plus one retail space. Zoning by-law approval, site plan approval, and architectural drawings are all complete. A new owner can pull permits and proceed directly to construction. Further value is created through reduced development charges from the City of Mississauga, available until November 2026, enhancing overall project economics.
Directions: Cawthra-Lakeshore
Cross Street: Cawthra

No obligation or purchase necessary, cancel at any time.

416-816-6001
Not a good time?