67 Meg Drive, London South, ON N6E 2V2
South X · Middlesex · ON
MLS® Number: X12960976
Listing Brokerage: CENTURY 21 FIRST CANADIAN CORP
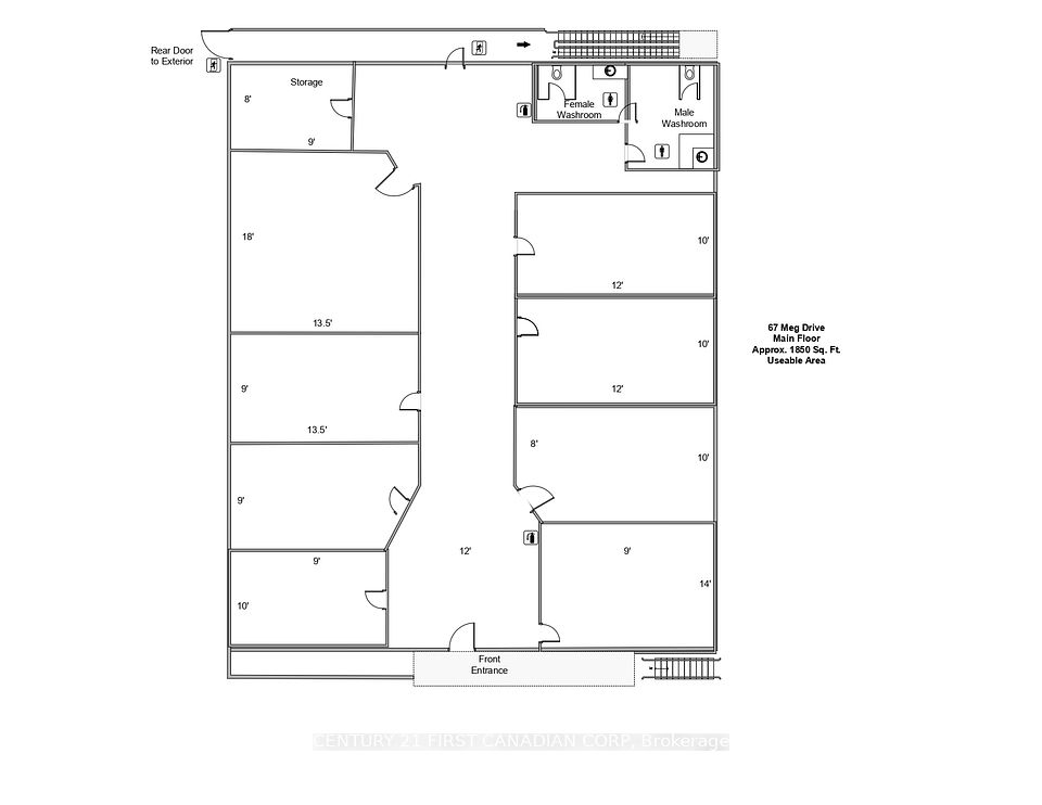
Prime commercial office space for lease in the heart of South London industrial/commercial zone. Ideal for independent entrepreneurs. Located on Meg Dr., near Exeter Rd with rapid 401 and 402 access in a high visibility building with great street presence. Two common washrooms (Male/Female). Entire main floor consisting of 8 private offices - 2000 Sq. Ft. - off of common corridor or individual offices starting at $750/Month all inclusive gross lease. Finished lower level available. Ideal for most office uses. Zoning permits any business service including technical and professional consulting services for most industries, engineering, accounting, surveying, employment agencies, security, business service and support. Onsite client parking included. Public transit bus stop within 500' of the building. Do not miss this opportunity for your business to grow and prosper!
Directions: WEST ON EXETER RD AND THEN TURN LEFT ON MEG DR.
Cross Street: WEST ON EXETER RD AND THEN TURN LEFT ON MEG DR.

No obligation or purchase necessary, cancel at any time.

905-226-7284
Not a good time?