121 Cataraqui Street, Kingston, ON K7K 1Z8
22 - East of Sir John A. Blvd · Frontenac · ON
MLS® Number: X12967130
Listing Brokerage: RE/MAX FINEST REALTY INC., BROKERAGE
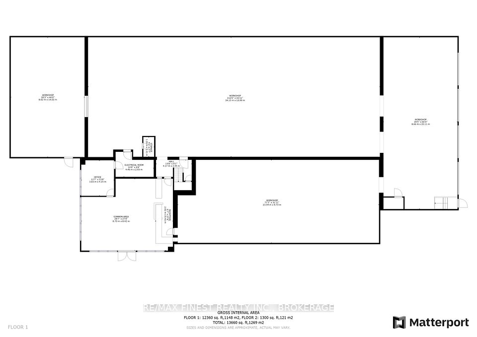
Formerly home to The Beer Store, this well-located commercial property sits beside Optimist Baseball Field and Megaffin Park, offering excellent visibility and accessibility. The current zoning supports a variety of potential uses, including public or private day schools, churches, community halls, and community homes, making it suitable for a range of institutional or commercial purposes. The property occupies a prominent corner site with approximately 337 feet of frontage on Cataraqui Street and 168 feet along Bagot Street. The building offers a total ground-level footprint of 12,866 sq. ft., along with 1,467 sq. ft. of additional office space on the second floor. Inside, the layout includes a 9,192 sq. ft. warehouse area, a 2,326 sq. ft. walk-in cooler, and a 1,452 sq. ft. retail space. Ceiling heights range from 15 to 20 feet, providing flexibility for various operations. The fenced lot also features three loading docks, supporting efficient loading and distribution.
Directions: Bagot St to Cataraqui St
Cross Street: Bagot St and Cataraqui St

No obligation or purchase necessary, cancel at any time.

905-226-7284
Not a good time?