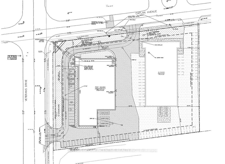
111A Caplan Avenue, Barrie, ON L4N 9J3
400 West · Simcoe · ON
MLS® Number: S12693568
Listing Brokerage: SUTTON GROUP INCENTIVE REALTY INC.
BRAND NEW INDUSTRIAL BUILDING - Completion target for December 2026. This high-profile corner facility at Veteran's Drive and Caplan Avenue offers exceptional visibility and corporate presence. Designed for functionality and efficiency, the building features just under 35' overall height, 30' clear ceiling height, and efficient 50'x54' bay sizing - providing maximum flexibility for warehousing, manufacturing, and logistics. New construction delivers energy efficiency and reduced operating costs. Two points of access to the building and a centrally positioned footprint on the site allow for smooth, uninterrupted logistics and circulation. Light Industrial zoning permits a broad range of uses. The Landlord is prepared to consider competitive tenant incentive packages for qualified tenants. Additional rent is estimated and subject to construction completion and re-assessment.
Directions: 434204001808530
Cross Street: Located on SE corner of Veterans & Caplan Ave

No obligation or purchase necessary, cancel at any time.

905-226-7284
Not a good time?