230 Admiral Boulevard, Mississauga, ON L5T 2N6
Gateway · Peel · ON
MLS® Number: W12703524
Listing Brokerage: ZYNGLY INC.
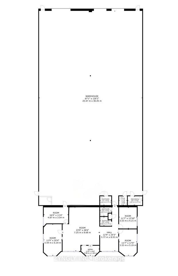
Offering a unique opportunity to acquire a thriving sports facility, operational since November 2023. Situated in a freestanding building, this 11,000 sqft facility includes 1,800 sq. ft. of modern office space, perfectly suited for administrative purposes and customer service. Freestanding structure ensuring exclusive use of the premises. Ample parking available, accommodating both participants and spectators. 6 modular lanes that can be transformed into an open space or divided into two separate areas, accommodating a variety of sports and activities. Equipped with 3 bowling and pitching machines, 2 softball pitching machines, and 6 speed guns for performance tracking. Bright, energy-efficient lighting ensures optimal visibility for both players and spectators. Demonstrated profitability with multiple teams already signed up, showcasing a strong and growing customer base. Securely situated in a leased space with the 3rd year of a 5 term already underway, providing stability and predictability for future operations. This facility not only promises immediate operational capability but also offers significant growth potential in the expanding market of indoor sports. Sports Facility, Indoor Recreational, Baseball, Softball, Cricket, soccer, pickleball. **EXTRAS** Bowling/Pitching Machines, 6 Speed Guns. L Screens. Pitching Mound. 200-Amp Service. 19"9' Clear Height. Approx 100 Ft Frontage With Approx. 360 Ft Depth. Loading Area Between Back Of Building And Property Line Is 118 Ft In Length. Large Warehouse With 6 Office Spaces, Kitchenette Area, Boardroom, And Storage Room. Four 2-Piece Washrooms. Office Is Equipped With Air Conditioning. Warehouse Is Equipped With 4 Heaters, 2 Man Doors. Close To 400 Series Highways And Pearson International Airport.
Directions: 230 Admiral
Cross Street: Admiral/Edwards

No obligation or purchase necessary, cancel at any time.

905-226-7284
Not a good time?