66 King Street W, Hamilton, ON L9H 1T8
Dundas · Hamilton · ON
MLS® Number: X12856864
Listing Brokerage: RE/MAX REALTY SERVICES INC.
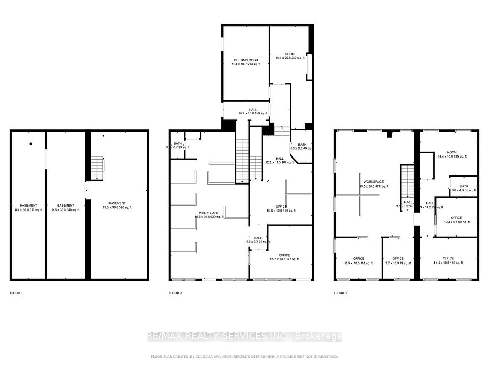
Incredible opportunity to lease a versatile and highly visible commercial space in the heart of downtown Dundas at 66 King St W. This well-maintained building features two storefront entrances and a functional layout ideal for a variety of business & retail uses. The left side has an open layout with a washroom at the rear. The right side offers a large street-facing office, access to the basement, washroom, full kitchen, boardroom, and access to the upstairs and rear exits. Upstairs features four private offices and an additional washroom. Building can be divided into up to 3 separate units. Located in a high-traffic area surrounded by shops, restaurants, and amenities, with nearby parking and public transit access. TMI included in the monthly rent.
Directions: King St W & Sydenham St
Cross Street: King St W & Sydenham St

No obligation or purchase necessary, cancel at any time.

416-816-6001
Not a good time?